9臺沖床連線連桿式機械手機械特點
發布時間:2023-04-22 10:16:20 瀏覽:120次 責任編輯:東莞佑億設備
連桿式機械手也是沖床機械手的其中一種,能夠實現多臺沖床的連線自動化作業,做到真正的高效率生產運作。那么連桿式機械手有哪些機械特點呢?連桿式機械手如何將多臺沖床連線?
沖床連桿式機械手特點:
1、產品部件品質穩定可靠,大大降低客戶維護成本。
2、有效節省人工 ,降低人工成本,避免因人員流動對生產造成不利影響,高自動化生產線,強化作業安全性,提升產能,穩定產品質量,有效降低不良率及成本。
3、操作界面及產品外觀依人體功能學而設計。
4、采用人機界面和PLC操作系統,高性能之AC伺服驅動,運轉平滑,并在運轉中進行實時監控。
5、移送距離可依客戶之沖床或模具實際排列間距訂制。
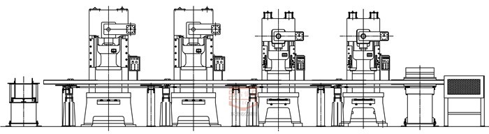
6、依不同客戶產品之沖壓工藝,可連接2~10臺沖床組成自動化沖壓生產線。
7、通過PLC采集連接沖床主檔上的死點信號,驅動所有連接沖床同步動作。
8、吸著方式可為真空吸盤或電磁吸鐵,氣動夾具可混合使用,適應不同工作。
9、進料方式,卷料可搭配偏擺送料機、NC伺服送料機或三合一送料機,片料可搭配雙堆式積料架。
10、連桿式機械手可根據不同客戶的產品工藝選配積料架,反轉機,NC滾輪送料機,攻牙機等。
多工位連線機械手示意圖

多機多工位機聯機機械手配沖床安裝實例

東莞市佑億精密自動化設備有限公司